Contact Us
Make a Payment
Agent Login
About Us
Our Story
Meet the Team
Contact Us
For Agents
Partner with Us
Tech Solutions
Contract Bonds
Contract Bonds
Bid Bonds
Payment/Performance Bonds
Warranty/Maintenance Bonds
Development/Subdivision Bonds
SBA Bond Guarantee Program
Court Bonds
Search Bonds
Resources
What are Surety Bonds?
Agents Guide to Bonds
Construction Bonds 101
Commercial Bond Guide
Renewal FAQs
Claims FAQs
Blog
Forms
About Us
Our Story
Meet the Team
Contact Us
For Agents
Partner with Us
Tech Solutions
Contract Bonds
Contract Bonds
Bid Bonds
Payment/Performance Bonds
Warranty/Maintenance Bonds
Development/Subdivision Bonds
SBA Bond Guarantee Program
Court Bonds
Search Bonds
Resources
What are Surety Bonds?
Agents Guide to Bonds
Construction Bonds 101
Commercial Bond Guide
Renewal FAQs
Claims FAQs
Blog
Forms
Contact Us
Make a Payment
Agent Login
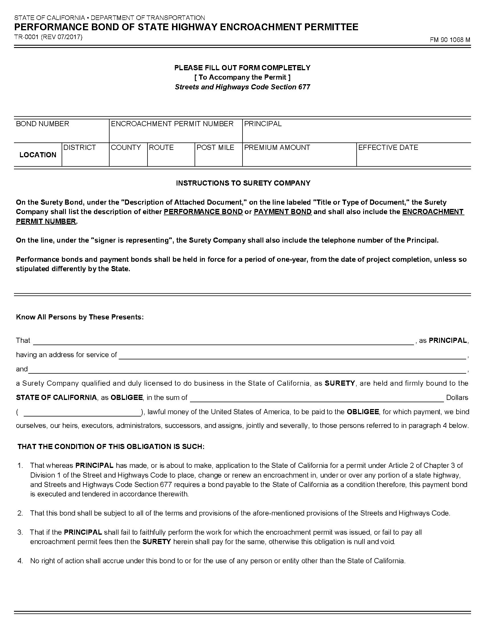
State of California Encroachment Permittee Performance Bond
The California Encroachment Permittee Performance Bond starts at $100 plus shipping costs and fees. Fill out the form to buy your bond instantly!
Apply for Bond
Bond Terms
State
CA
Bond Name
State of California Encroachment Permittee Performance Bond
Premium
Starts at $100
Bond Amount
$1-$100,000
Term
12 months
Obligee
State of California
Apply for Bond
Contact Our Team
Hear what our customers have to say
BOSS Bonds delivers.
Accessibility no matter where customers operate in the U.S.
Transparent communication from start to finish
Solutions based on expert industry knowledge
Customer service that’s exceptional, consistent and prompt
Competitive pricing and best terms
Get started with us today.
Call us: 1-800-361-1720
Contract Bonds
Search Bonds
Send a Message
All rights reserved 2026 © BOSS Bonds Insurance Agency, LLC | CA DOI License# 0M08008
Terms and Conditions
Privacy Policy